Buy A Property

High Street

High Street, Barnby Dun, Doncaster, , DN3 1DY
£485000

Full Description

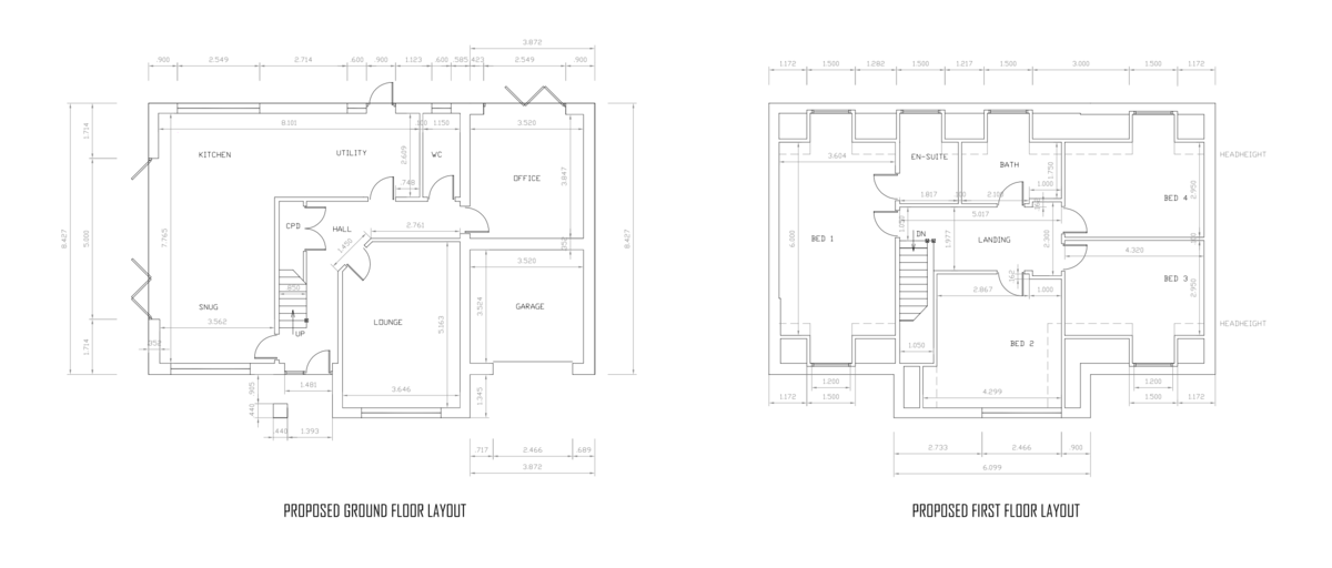
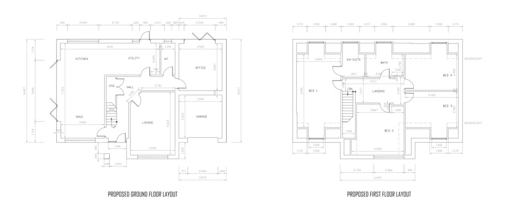
STUNNING PROPOSED RENOVATION OF THIS PROPERTY WILL TAKE PLACE OVER THE COMING MONTHS TO CREATE A STYLISH DETACHED DWELLING WITH FOUR BEDROOMS. The property has recently had planning passed for a complete transformation and there is still time to discuss the internal choices if an offer can be agreed with the developer prior to March 2026. The build has a proposed completion of April 2026 and briefly comprises of entrance hallway, lounge, office space, WC, L-shaped open plan living/dining kitchen with utility space, stairs to the first floor landing, master bedroom with en-suite, family bathroom, three further spacious bedrooms, front driveway with new entrance, front, side and rear landscaped gardens with patio. A RARE OPPORTUNITY AND ONE NOT TO BE MISSED, INITIAL ENQUIRIES DURING THE BUILD ARE NOW BEEN ACCEPTED.

LOCAL NOTES Positioned on the corner of Sycamore Road & High Street in the sought after village of Barnby Dun, you have a range of amenities on the doorstep including local public house, farm shop, butchers, supermarkets and local primary school. Just a short walk to local canal/countryside walks, you will not be disappointed by the position of this beautiful renovated home.

NOTES FREEHOLD PROPERTY.
RENOVATION DUE TO COMPLETE APPROXIMATELY APRIL 2026.
INPUT INTO INTERIOR FITTINGS WILL BE POSSIBLE UNTIL MARCH 2026.
COUNCIL TAX BAND IS CURRENTLY - C, BUT MAY BE ALTERED AFTER THE RENOVATION, PLEASE CONSULT DMBC.
HEATING SYSTEM: NEW GAS FIRED COMBINATION BOILER AND INSTALLATION DATE TBC.
NEW ELECTRICS THROUGHOUT AND INSTALLATION DATE TBC.
NEW KITCHEN/BATHROOM FITTINGS.
SERVICES: MAINS.
EPC RATING IS THE CURRENT RATING PRIOR TO RENOVATION.

Floor Plan

Key Features

  • Fully Renovated Detached Property In Barnby Dun
  • Four Spacious Bedrooms
  • Lovely Generous Plot With New Driveway
  • Integral Garage & Plenty Of Off Street Parking
  • Rare Opportunity To Purchase
  • Two Reception Rooms
  • L-Shaped Lounge/Kitchen/Diner With Utility Space
  • Master Bedroom With En-Suite
  • Viewings Are Via Developer Appointment Only
  • Available With No Upward Chain
arrange a booking online download the brochure make an offer share with friends

Map View

Valpal Banner

Book A Viewing




I confirm that I have read the terms and conditions stated on the Privacy Policy page